Nieuw in verkoop:Donauring 243, 5152 TK Drunen - Foto
Nieuw in verkoop
+44

Donauring 243 5152 TK Drunen € 415.000,- k.k.

  • Woonhuis
  • 5 kamers
  • 4 slaapkamers
  • 2 badkamers
  • Bouwjaar 1986
  • 128 m² perceeloppervlakte
  • 113 m² gebruiksoppervlakte
  • B Energielabel B

Beschrijving

Fijne uitgebouwde tussenwoning met 4 slaapkamers en 2 badkamers.

Wil je verhuizen naar een plek waar je écht thuis kan komen? Stop dan met zoeken, want Donauring 243 in Drunen zou zomaar eens jouw volgende adres kunnen zijn. Deze uitgebouwde tussenwoning heeft alles wat jonge gezinnen nodig hebben: ruimte, licht, gemak en het heerlijke gevoel van 'hier wil ik wonen!'

Je stapt binnen in de lichte hal die toegang geeft tot het kloppende hart van deze woning: de royale woonkamer met open keuken en glazen tuin serre. Hier kun je je creativiteit kwijt met je inrichting (en geloof ons: al je meubels passen er makkelijk in!). Dankzij de grote raampartijen baadt deze ruimte de hele dag in natuurlijk licht. Nodig je vrienden uit voor een borrel, bouw samen een kussenfort met de kids of kruip lekker op de bank na een lange werkdag.
Opp. ca. 36 m2.

De open keuken – ja, eentje waar je echt kunt koken zonder krap te zitten! – is ideaal voor wie van samen eten en gezelligheid houdt. Geen gedoe met onhandige smalle aanrechten. Met genoeg ruimte voor al je potten, pannen én een flinke eettafel. De keuken is uitgevoerd met moderne inbouw apparatuur oa. een combi-oven, inductie kookplaat, afzuigkap, koelkast en vaatwasser. De keuken aan de voorzijde van de woning geeft je een prettig en vrij zicht. Opp. ca. 5 m2.

Op de eerste verdieping zijn drie ruime slaapkamers te vinden. Of je nu nog een babykamer nodig hebt, een stoere tiener wilt verrassen met een eigen plekje of zelf lekker groot wilt slapen: het kan allemaal. De kamers zijn lekker licht en bieden meer dan genoeg ruimte voor kasten, bureaus en speelplezier. Opp. resp. ca. 7, 8 en 14 m2. Een fijne badkamer met douche cabine, vaste wastafel en toilet.

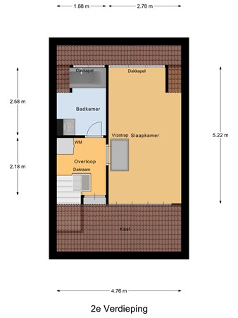
Hoe fijn is dat: geen rijen voor de badkamer ’s ochtends! Deze woning biedt namelijk een tweede complete badkamer op de zolder verdieping. Zo kun je gewoon relaxed douchen of in bad, terwijl een ander zich opfrist in de tweede badkamer. Dat bespaart je echt tijd en stress, iets waar elk gezin blij van wordt! Daarnaast heeft deze woning op de 2e verdieping aansluitingen voor het witgoed en opstelling van de HR combiketel 2020. Bovendien een 4e slaapkamer met dakkapel, bergruimte en bergzolder. Opp. ca.15m2.
Buiten een gezellige voortuin én een heerlijke achtertuin van maar liefst 50 m2. Lekker veel zon, dus je hoeft niet meteen op vakantie voor dat ultieme zomergevoel ! De achtertuin op het zuid-westen met een fijne overdekte tuinzit en berging, een eigen achterom en speciale bergingen voor de containers.

Een heerlijk huis kom snel even kijken ! 

Bijzonderheden:
- Opp. perceel 128 m2, woonopp. 113 m2
- Goede staat van onderhoud.
- Optimale lichtinval door de hele woning
- Gelegen in een kindvriendelijke buurt met scholen en winkels binnen handbereik
- Duurzaamheid; Energielabel B

Kaart

Kenmerken

Overdracht

Referentienummer
00119
Vraagprijs
€ 415.000,- k.k.
Status
Nieuw in verkoop
Aanvaarding
In overleg
Aangeboden sinds
Dinsdag 27 januari 2026

Bouw

Type object
Woonhuis, eengezinswoning, tussenwoning
Soort bouw
Bestaande bouw
Bouwperiode
1986
Dakbedekking
Bitumen
Dakpannen
Type dak
Schilddak
Isolatievormen
Dakisolatie
Grotendeels dubbel glas
Muurisolatie
Spouwmuren

Oppervlaktes en inhoud

Perceeloppervlakte
128 m²
Woonoppervlakte
113 m²
Woonkameroppervlakte
28,66 m²
Keukenoppervlakte
4,66 m²
Inhoud
385 m³
Oppervlakte externe bergruimte
8 m²

Indeling

Aantal bouwlagen
3
Aantal kamers
5 (waarvan 4 slaapkamers)
Aantal badkamers
2

Locatie

Ligging
In woonwijk
Nabij school
Nabij winkelcentrum

Tuin

Type
Achtertuin
Oriëntering
Zuid-west
Heeft een achterom
Ja
Staat
Normaal

Energieverbruik

Energielabel
B

CV ketel

CV ketel
HR107
Warmtebron
Gas
Bouwjaar
2020
Combiketel
Ja
Eigendom
Eigendom

Uitrusting

Aantal parkeerplaatsen
5
Warm water
CV-ketel
Verwarmingssysteem
Centrale verwarming
Ventilatie methode
Mechanische ventilatie
Natuurlijke ventilatie
Keukenvoorzieningen
Inbouwapparatuur
Badkamervoorzieningen Badkamer 1
Douche
Toilet
Wastafel
Badkamervoorzieningen Badkamer 2
Ligbad
Wastafel
Glasvezelaansluiting aanwezig
Ja
Tuin aanwezig
Ja
Heeft schuur/berging
Ja
Heeft een schuifpui
Ja
Heeft ventilatie
Ja

Kadastrale gegevens

Kadastrale aanduiding
Drunen L 4074
Perceeloppervlakte
128 m²
Omvang
Geheel perceel
Eigendomsituatie
Eigen grond