Nieuw in verkoop:Molenhoek 5, 5251 EK Vlijmen - Foto
Nieuw in verkoop
+76

Molenhoek 5 5251 EK Vlijmen € 1.495.000,- k.k.

  • Woonhuis
  • 5 kamers
  • 4 slaapkamers
  • 1 badkamers
  • Bouwjaar 1984
  • 3.173 m² perceeloppervlakte
  • 214 m² gebruiksoppervlakte
  • C Energielabel C

Beschrijving

Vrijstaande woning op een droomlocatie in het buitengebied.

Stel je eens voor: wakker worden met niets anders om je heen dan rust, weilanden en het geluid van vogels. Geen drukke weg voor de deur, gewoon pure vrijheid. Toch zit je hier absoluut niet in the middle of nowhere. Scholen? Op fietsafstand! Winkels? Zo gepiept. De snelweg en Den Bosch? Met tien minuten reis je richting werk of een gezellig dagje stad. Ook het prachtige Engelermeer ligt vlakbij voor een ontspannen rondje wandelen met de hond of een verfrissende duik.
En nu komt het mooiste: het perceel is zo ruim dat je er eigenlijk alles mee kunt doen. Heb je altijd al paarden willen hebben, konijnen willen houden of je eigen kippen willen verzorgen? Hier kan het. Er is alle ruimte om kleinvee te houden en/of je eigen groenten te kweken (in de kas), terwijl je kinderen zich uitleven in de tuin of op het grasveld.

Het woonhuis om van te dromen (en in te leven!)
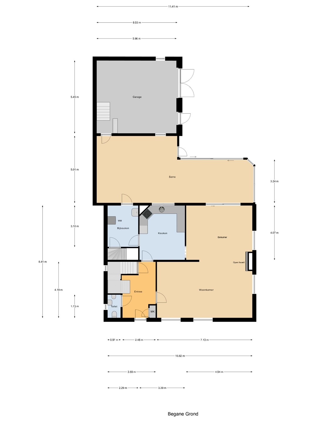
Dan het huis zelf, want dat mag er ook zijn; een degelijk gebouwd woonhuis 1984 met in totaal 214 m² woonoppervlak. Alle verblijfsruimten zijn royaal bemeten en bieden u vele mogelijkheden.
De woonkamer is royaal met een oppervlak van 50 m² en de open haard nodigt uit tot lange avonden met een goed glas wijn of een spannende filmavond met het gezin. De woonkeuken biedt genoeg werk- en opbergruimte voor de echte hobbykok.
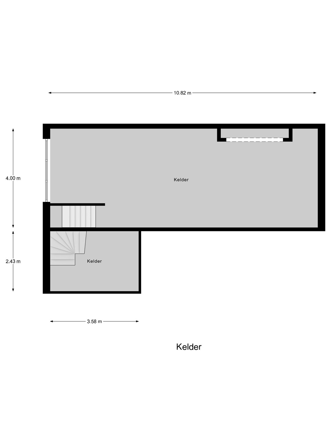
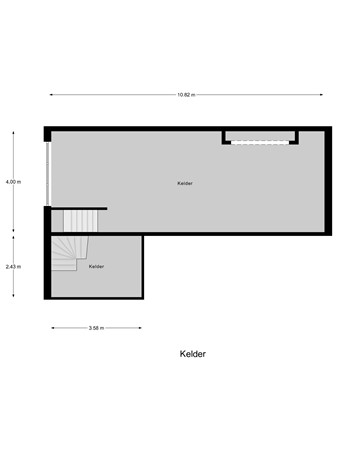
Een bijkeuken met de aansluitingen voor het witgoed en de opstelling van de combiketel biedt u nog een bijzonder extraatje. Onder deze ruimte bevindt zich een grote kelder met een hoogte van net onder de 2 m. maar met een oppervlakte van ca. 45 m² (Nb deze ruimte is door de beperkte ruimte niet meegerekend bij het totale woonoppervlak); ideaal voor de kinderen, die zich hier veilig uit kunnen leven – maar natuurlijk ook superhandig als chillruimte, fitness, mancave, thuisbioscoop, of wat je maar bedenkt.
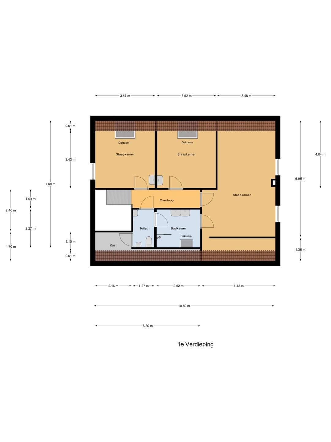
Middels de vaste trap met vide naar de verdieping vind je een 3-tal comfortabele en royale slaapkamers, stuk voor stuk fijne plekken om te slapen, studeren of gewoon even weg te kruipen met een boek. Der ouderslaapkamer heeft een oppervlak van bijna 30 m² ! Een badkamer met comfortabel sanitair, een separaat toilet en veel vaste kastruimte en volop privacy maken het plaatje compleet.
De zolder, nu nog te bereiken met een vlizo trap, heeft de mogelijkheid met een vaste trap te worden betrokken bij de woonoppervlak; een dakkapel zou hier veel extra ruimte scheppen.
De woning is zeer geschikt wat duurzamer te maken waarbij u kunt denken aan nog optimalere isolatie, en het installeren van zonnepanelen en een (hybride) warmtepomp.

De lichte serre geeft u een direct en fantastisch zicht op de tuin en het omringende groen, met meer dan genoeg plaats om een zitgroep te plaatsen. Oppervlakte ca. 50 m².
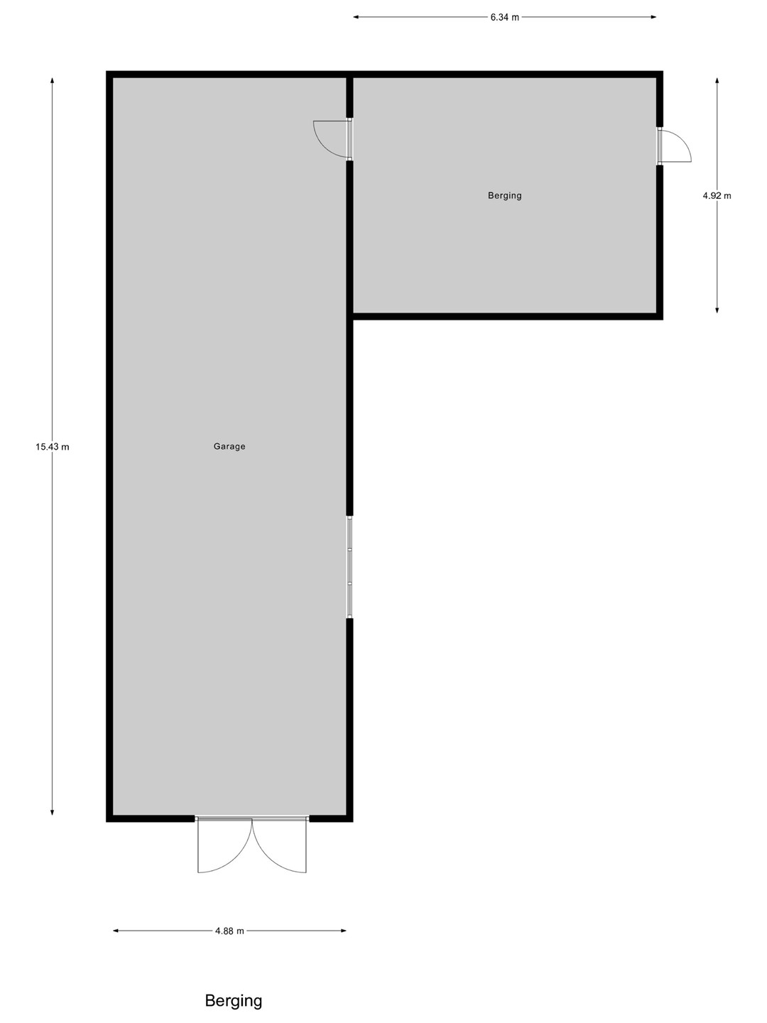
Inpandig is de grote garage te bereiken met dubbele – en een enkele loopdeur naar buiten. De garage heeft een vaste rap naar de verdieping met een royale verblijfsruimte met eigen verwarming en een wastafel. De garage heeft beneden een oppervlakte van ca. 33 m². Direct naast de garage een carport plaats biedend aan 2 auto’s.
Nabij de garage nog een atelier met een overdekte zit en een prieeltje in de tuin.
Een verhard pad leidt u naar de achterkant van het royale perceel met een totale diepte van ca. 120 m alwaar een kas en een schuur met paardenstallen staan. Hier heeft u volop plaats om uw buitenzaken op te bergen die u liever uit het zicht heeft zoals tuingereedschap. De schuur heeft een totaal oppervlak van ruim 100 m² !
Aldus, Molenhoek 5 is echt een plek voor doorstarters die meer willen. Meer ruimte, meer vrijheid, meer natuur – zonder het comfort van de stad te hoeven missen. Misschien ben je net uit je eerste huis gegroeid, zoek je een plek waar werk en hobby’s samenkomen, of droom je van een groene jeugd voor je kinderen. Hier kun je het allemaal waarmaken.
Zie jij jezelf hier al wonen? Kom gerust kijken en ervaar de unieke sfeer zelf. Want eerlijk is eerlijk, sommige huizen moet je gewoon met eigen ogen zien voordat je ze echt gelooft.

Kortom:
- Vrijstaande eengezinswoning op ruim perceel 3173 m²
- Totaal woonoppervlak van 214 m²
- Energielabel C
- Nabij, scholen en winkels, Den Bosch, Het Engelermeer en de snelwegen A2/A59
- Royale speelkelder onder het huis
- Grenzeloos buitenleven voor kleinvee en paarden
- Oase van vrijheid én bereikbaarheid in één

Bel, mail of stuur even een appje voor meer info of een bezichtiging. Wie weet loop jij hier binnenkort over je eigen stukje paradijs!

Kaart

Kenmerken

Overdracht

Referentienummer
00112
Vraagprijs
€ 1.495.000,- k.k.
Status
Nieuw in verkoop
Aanvaarding
In overleg
Aangeboden sinds
Zaterdag 29 november 2025

Bouw

Type object
Woonhuis, eengezinswoning, vrijstaande woning
Soort bouw
Bestaande bouw
Bouwperiode
1984
Dakbedekking
Dakpannen
Type dak
Samengesteld
Keurmerken
Energie prestatie advies
Isolatievormen
Dakisolatie
Grotendeels dubbel glas
Spouwmuren

Oppervlaktes en inhoud

Perceeloppervlakte
3.173 m²
Woonoppervlakte
214 m²
Woonkameroppervlakte
50,46 m²
Keukenoppervlakte
13,8 m²
Inhoud
1.085 m³
Oppervlakte overige inpandige ruimten
121 m²
Oppervlakte externe bergruimte
107 m²

Indeling

Aantal bouwlagen
3
Aantal kamers
5 (waarvan 4 slaapkamers)
Aantal badkamers
1 (en 1 apart toilet)

Locatie

Ligging
Aan rustige weg
Beschutte ligging
Platteland
Vrij uitzicht

Tuin

Type
Tuin rondom
Hoofdtuin
Ja
Oriëntering
Zuidoost
Heeft een achterom
Ja
Staat
Normaal

Energieverbruik

Energielabel
C
Energie-index
1,97

CV ketel

CV ketel
HR-107
Warmtebron
Gas
Bouwjaar
2019
Combiketel
Ja
Eigendom
Eigendom

Uitrusting

Aantal parkeerplaatsen
5
Aantal overdekte parkeerplaatsen
3
Warm water
CV-ketel
Verwarmingssysteem
Centrale verwarming
Houtkachel
Ventilatie methode
Mechanische ventilatie
Natuurlijke ventilatie
Keukenvoorzieningen
Inbouwapparatuur
Badkamervoorzieningen
Inloopdouche
Wastafel
Parkeergelegenheid
Aangebouwde stenen garage
Glasvezelaansluiting aanwezig
Ja
Tuin aanwezig
Ja
Heeft een garage
Ja
Beschikt over een internetverbinding
Ja
Heeft schuur/berging
Ja
Heeft een dakraam
Ja
Heeft een schuifpui
Ja
Heeft ventilatie
Ja

Kadastrale gegevens

Kadastrale aanduiding
VLIJMEN l 3340
Perceeloppervlakte
3.173 m²
Omvang
Geheel perceel
Eigendomsituatie
Eigen grond